$187,900
 $1,009 est/mo Sourced by Back At You

45 Camp Road,Berkshire, VT 05447

Berkshire, VT 05447

Share:

Description

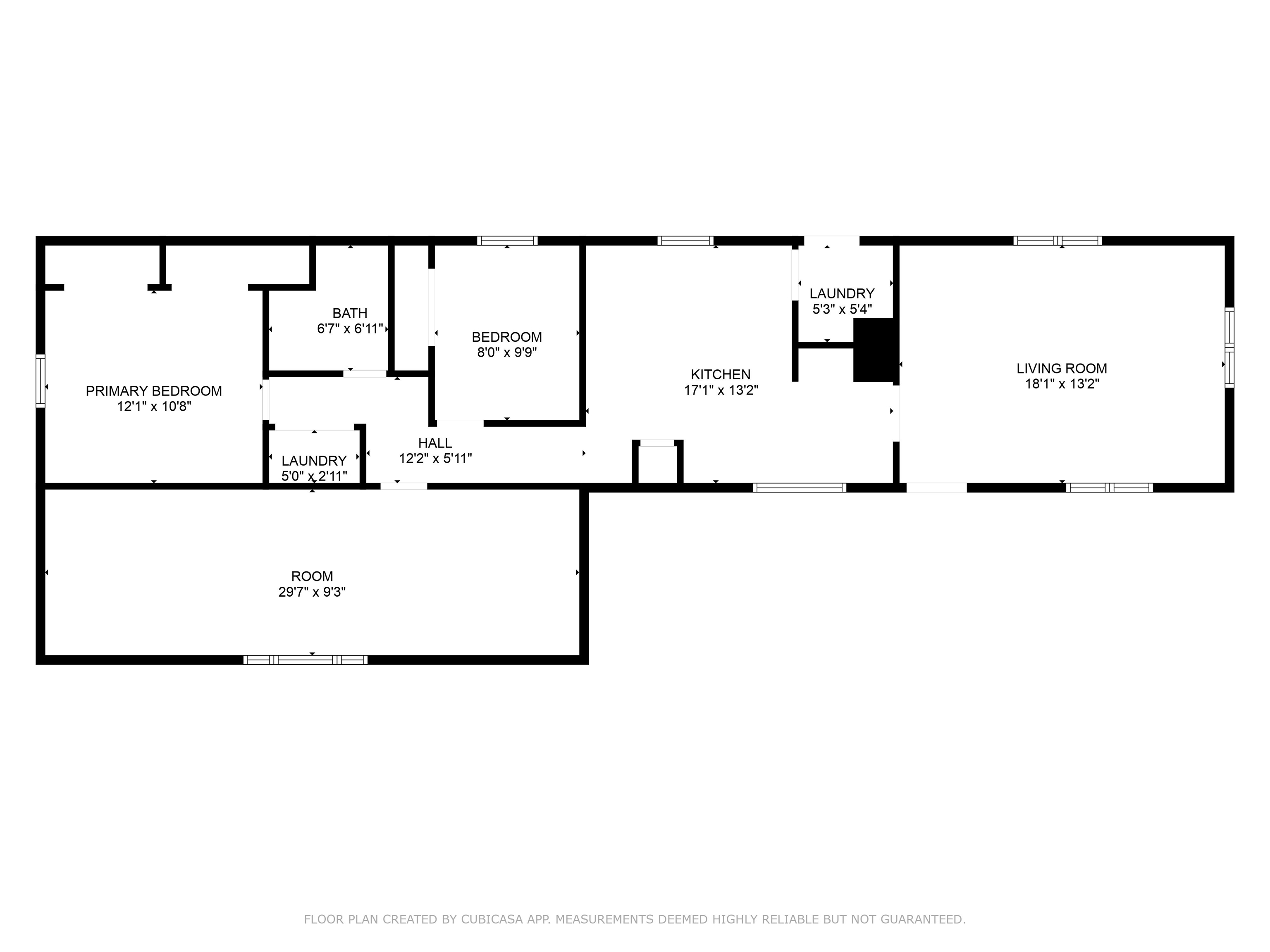
Nestled on 0.4 acres in a peaceful, private setting, this well-maintained mobile home with a large addition built in 2023 offers comfort, character, and convenience. Inside, you’ll find a renovated interior with drywall walls (instead of the typical mobile home finish), custom cabinetry, and thoughtful updates throughout. A new furnace ensures year-round efficiency, while the new back deck is perfect for relaxing or entertaining. The home features two bedrooms plus an additional room ideal for a home office, craft room, or guest space, giving you flexibility to fit your lifestyle. Outdoor enthusiasts will love the locationjust steps from the Lamoille Valley Rail Trail, close to a kayak launch, and with direct access to the VAST trails for year-round recreation. You’ll also enjoy being only 10 minutes to Hannaford’s Grocery Store, 25 minutes to Jay Peak Resort and 40 minutes to St. Albans City. Combat Vermont's seasons with a portable generator, a great way to keep the lights on if the power goes out. Let's not forget the large two car garage with high ceilings, perfect for tinkering. Whether you’re seeking a primary residence or a Vermont getaway, this property combines modern updates, recreational access, and small-town convenienceall in a tranquil setting. This affordability can't be beat!

Details

MLS #5060271
Listing TypeFor Sale
StyleManufactured Home
Sub-TypeResale
Status(31) Under Contract - Active Under Contract
Year1981
Days On Site59
Listing Provided ByNorthern Vermont Realty Group | Aaron Scowcroft

Features

Bed(s)2
Bath(s) 1 Total
Garage2
BasementY
Story(s)1
ZoningRural Lands District
Acreage0.40

Interior

Rooms Total7
CoolingNone
HeatingKerosene
Interior FeaturesBlinds, Ceiling Fan(s), Kitchen/Dining
AppliancesDryer, Freezer, Microwave, Refrigerator, Washer, Electric Stove

Exterior

Exterior FeaturesDeck, Outbuilding, Patio, Shed, Storage
RoofMetal
Construction MaterialsWood Frame, Vinyl Siding
Foundation DetailsSkirted, Concrete Slab
Lot FeaturesSlight, Sloping, Views
Accessibility Features1st Floor 3/4 Bathroom, 1st Floor Hrd Surfce Flr, Bathroom w/Step-in Shower, Grab Bars in Bathroom, One-Level Home, 1st Floor Laundry

Parking

Garage Yes / NoYes

Utilities

UtilitiesSatellite
Electric100 Amp Service, Circuit Breakers
Sewer1000 Gallon, Septic Tank

Taxes

Tax Annual Amount1745.12
Tax Year2025

Area Information

StateVT
CountyFranklin
CityBerkshire
Zip Code05447
AreaVT Franklin
School DistrictFranklin Central School District
Elementary SchoolBerkshire Elementary School
High SchoolEnosburg Falls Senior HS
Sourced by Back At You

Request a showing

Request a showing

Loading Form


Copyright 2025 PrimeMLS. All rights reserved. This information is deemed reliable, but not guaranteed. The data relating to real estate displayed on this Site comes in part from the IDX Program of PrimeMLS. The information being provided is for consumers’ personal, non-commercial use and may not be used for any purpose other than to identify prospective properties consumers may be interested in purchasing.

Contact

Learn More About This Property

StateVT
CountyFranklin
CityBerkshire
Zip Code05447
AreaVT Franklin
School DistrictFranklin Central School District
Elementary SchoolBerkshire Elementary School
High SchoolEnosburg Falls Senior HS
Sourced by Back At You
Listing Updated: October 28, 2025 at 4:28:35 PM PDT
Real Estate Links Our Domains